0
Zum Inhalt springen
ZEHNTENHOF
Home
Geschichte
Kontakt
ZEHNTENHOF
Home
Geschichte
Kontakt
Home
Geschichte
Kontakt
Nordseite_vor_Umbau_wo.jpg
Wehrgang_Umbau_wo.jpg
Gang_Jürg_wo.jpg
Kirschholzschränke_EG_wo.jpg
Grundriss_EG_mit_Bilder_wo.jpg
Kirschholzschränke_wo.jpg
Grundriss-Bilder-Mix_wo.jpg
Kirschholztüre_wo.jpg
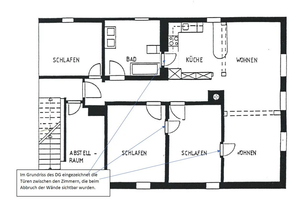
Grundriss_DG_wo.jpg
Querschnitt_Treppe_wo.jpg
Riegelbauwand_EG_wo.jpg
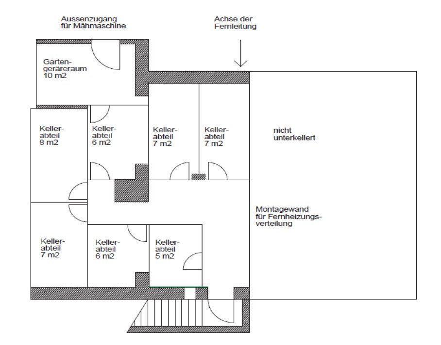
Grundriss_Keller_2_wo.jpg
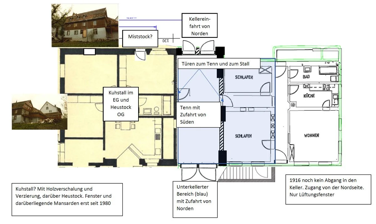
Umbau_sw_wo.jpg
Grundriss_Keller_wo.jpg
Torbogen_Nord_wo.jpg
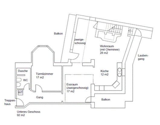
Grundriss_Türmli_1OG_wo.jpg
Grundriss_Türmli_wo.jpg
plan_1_wo.jpg

Zehntenhof

Kirchstrasse 8 - 8574 Illighausen

Impressum und Datenschutz

© Design by Dan Furrer